A bge multifunkcionális oktatási, kutatási és kulturális centrummal bővül
Kihirdették a Buzogány utcai épület bővítésére kiírt tervpályázat eredményeit
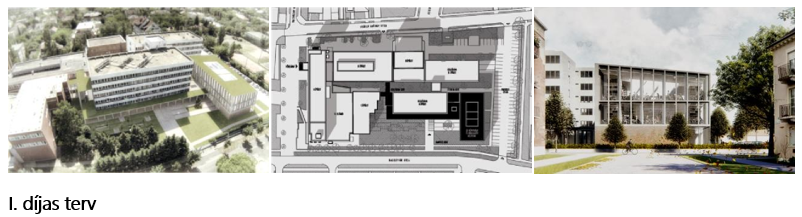
Budapest, 2018. november 29. – A Budapesti Gazdasági Egyetem (BGE) zuglói, Buzogány utcai épülete új központi könyvtárral, kulturális és sport célú terekkel és multifunkciós hallgatói centrummal bővülhet a közeljövőben a Magyar Kormány támogatásával. A beruházás 2020-ban kezdődhet és közel 2 milliárd forintból valósulhat meg. Az új komplexum megtervezésére a BGE a Magyar Építész Kamarával közösen tervpályázatot írt ki idén augusztusban, amelyre elsősorban a budapesti városképbe harmonikusan illeszkedő, multifunkcionális, az oktatás, kutatás és kulturális kikapcsolódást együttesen biztosító, modern és fenntartható pályaműveket vártak. A tervpályázatra összesen 16 pályázat érkezett be, melyek közül a Bíráló Bizottság hatot díjazott, egyben javaslatot tett az Egyetemnek arra, hogy a legjobb javaslatot és legtöbb hasznosítható megoldás tartalmazó I. díjas terv készítőivel kössön tervezési szerződést.
A Budapesti Gazdasági Egyetem az elmúlt években kiemelt figyelmet fordított az oktatói, kutatói és hallgatói környezet fejlesztésére, a rendelkezésre álló infrastruktúra modernizálására, a jövő generáció igényeinek figyelembe vételére. A magasszintű, gyakorlatorientált oktatás mellett a folyamatos újításoknak is nagyban köszönhető, hogy a BGE az idei évben már több mint 6 000 első évest tudott felvenni, ezáltal a hazai felsőoktatásban változatlanul a legnagyobb hallgatói létszámmal rendelkező gazdasági egyetem.
Dr. Dietz Ferenc, a BGE kancellárja hangsúlyozta: „Oktatói, kutatói és hallgatói közösségünk támogatja a folyamatos intézményi fejlesztéseinket, a jövő hallgatói számára kialakítandó multifunkcionális infrastruktúrát, amely figyelembe veszi a XXI. századi oktatási, társadalmi és digitális kihívásokat.” Tekintettel arra, hogy a BGE zuglói kampusz kollégiumának jelenleg egyszintes épülete átépítéssel multifunkcionális centrummá alakítható, az Egyetem a Magyar Építész Kamarával karöltve – a Magyar Kormány támogatásával – tervpályázatot hirdetett. A budapesti városképbe harmonikusan illeszkedő, multifunkcionális, az oktatás, kutatás és kulturális kikapcsolódást együttesen biztosító, modern és fenntartható építményterveket vártak, amely az „okos” szemlélet jegyében kerülhet kialakításra. A kiírásban kiemelt szempont volt, hogy széleskörűen alkalmazzák a környezettudatos technológiákat, lehetővé tegyék többek között élő növényekből álló zöldfal, valamint rekreációs és sportolási lehetőségeket biztosító terek, zöld tetőterasz kialakítását.
Eltér István, a Magyar Építész Kamara elnökségi tagja elmondta: „A pályaművek értékelése során a beépítést, a megvalósíthatóságot, a közlekedési és a környezetvédelmi követelményeknek való komplex megfelelést is vizsgáltuk, illetve hogy a pályaművek mennyire igazolják vissza a kiírásban foglalt elvárásokat. Fontos, hogy könnyen építhető, tartós és hosszú távon költséghatékonyan fenntartható beruházás szülessen, ami harmonikusan illeszkedik a budapesti városképhez.”
Dr. Dietz Ferenc hozzátette: „A pályaművekkel szemben alapvető követelmény volt, hogy helyet és teret biztosítsanak a kutatási és innovációs képesség fokozására, a nemzetközi tanulási-oktatási
környezet fejlesztésére, egyúttal méltón reprezentálják a BGE társadalmi felelősségvállalását. A nemzetközi trendek azt mutatják, hogy a könyvtár, mint találkozási pont, továbbra is fontos szerepet fog játszani az egyetemek közösségi életében. Meggyőződésem, hogy regionális versenyképességünk úgy növelhető, ha a magas minőségű oktatás mellett komplex intézményi tereket, élményalapú digitális oktatói, kutatói és hallgatói szolgáltatásokat kínálunk.”
A BGE Buzogány utcai épületegyüttese 1 750 m2 zárt területtel, 650 m2 zöldtetővel, valamint 560 m2 közösségi térrel bővülhet. A létrejövő multifunkcionális központ már a következő generációk igényei szerint valósulhat meg, ahol a hagyományos könyvtár mellett fontos szerepet kapnak a rugalmasan és könnyen alakítható közösségi terek, kulturális és sportfunkciók. Emellett az új épület publikus tereihez kapcsolódó tetőkertek és teraszok – azon túl, hogy kiváló lehetőséget kínálnak a kikapcsolódásra – erősíthetik a hallgatói környezet-tudatosságot, egyben kifejezik az Egyetem a fenntarthatóság iránti elkötelezettségét is.
A beruhás előkészítésének következő lépése a tervezési és engedélyezési szakasz, amelyben az Egyetem az első díjas, kiválasztott pályamű alkotóival kíván szerződést kötni a továbbtervezésre, hirdetmény nélküli közbeszerzési eljárás keretében.
A Budapesti Gazdasági Egyetemről
Intézményünk közel 16 000 hallgatója a gazdaságtudomány területén – többek között turizmus-vendéglátás, nemzetközi gazdálkodás, kereskedelem és marketing, pénzügy és számvitel, gazdálkodási és menedzsment, gazdaságinformatikus, valamint emberi erőforrások szakon – folytatja egyetemi alkalmazott-tudományi tanulmányait Budapesten és Zalaegerszegen. Oktatási portfóliónk lefedi a gazdaságtudomány szinte valamennyi szakterületét, egyediségünket és piaci elismertségünket élményalapú, gyakorlatorientált, a piaci igényekhez illesztett képzési struktúránknak köszönhetjük.
További információ: www.uni-bge.hu